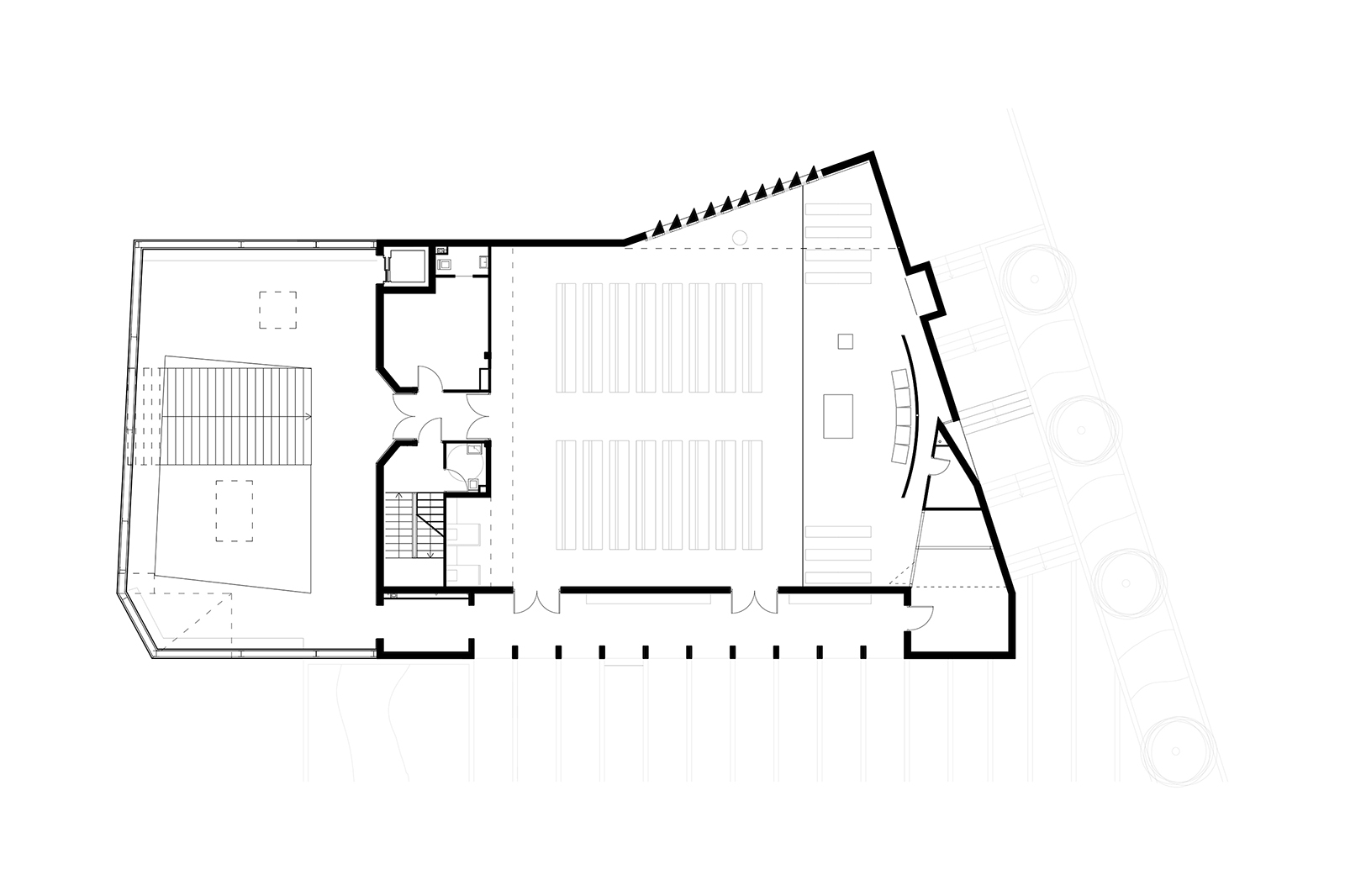
Zatečeni kontekst projekta sadržan je već u naslovu projektnog zadatka: crkva Sv. Ane i Hrvatski dom Vežica. Taj je javni i društveni kontekst samo pojačan prisustvom škole u neposrednom kontaktu s lokacijom projekta, ali i parkom koji ih sve povezuje, te funkcionira kao izvjesna ‘zelena kičma’. Crkva je dakle u direktnom dijalogu sa društvenim domom i parkom, pa se projektom stavlja naglasak upravo na ta dva prostorna odnosa i to putem ‘atrija’ i ‘trijema’, dva snažna arhitektonska elementa kojima mjesto postaje ‘pozicija’.
Unutrašnji prostor crkve započinje već na pristupnom trgu koji povezuje crkvu s domom, gdje crkva nadvivši se nad njime formira unutrašnji atrij kao prostornu ekstenziju trga. Uzvišenje započinje vlastitom refleksijom u staklenoj fasadi prizemlja, a nastavlja centralnim stubišteme koje vodi u atrij. Atrij ima zadatak okupljati i povezivati ljude, okružiti ih i zaštititi ih, navesti ih da zajedno sudjeluju u vjerskim događajima. Također se referira i na samostanski klaustar, obodno je uokviren punim zidom, dok je u sredini prodor, veza sa pristupnim trgom i prizemljem crkve. Atriji ujedno natkriva dio glavnog trga. Nastavno na atrij smješteni su sakralni prostori crkve na razini parka s kojim je crkva vezana posredno putem trijema. Tako se umjesto jednim vratima, vanjski i unutarnji prostor crkve odvajaju preko atrija i trijema crkve koji su direktno povezani (polujavni prostor). Ta je prostorna blizina crkve i parka, odnosno pristupnog trga, artikulirana kao područje ophodnji (procesija), gdje se liturgijski i svjetovni prostori susreću i daju život crkvi. Građevina ukazuje na svoju prisutnost jednom esencijalnom gestom: bijelom volumetrijskom dematerijaliziranom masom nadvija se nad glavnim trgom.
Razlika između ‘svjetovnog’ i sakralnog dijela crkve naglašena je tek djelomičnim izmicanjem i sasvim drugačijom materijalizacijom fasade – staklena stijena u odnosu na drvenu oblogu, odnosno betonske ploče u odnosu na kamenu oblogu poda ‘loggie’. Bijeli zidovi definiraju vanjski obod crkve i stvaraju distancu između unutarnjeg duhovnog svijeta i vanjskog grada.
Prostorni rast crkve kroz atrij, lađu koji završava na prezbiteriju crkve, prati i gradacija unutrašnjeg svjetla. Pristupni trg okupan dnevnim svjetlom, diže se u tajanstveni polumračni atrij, te završava u svjetlom ispunjenu glavnu dvoranu. Prostor crkvene dvorane karakteriziraju tri osnovna elementa. Prvi od njih je kosi uzdužni i poprečni presjek dvorane koji prati rast dvorane prema prezbiteriju. Drugi su vidljiva armiranobetonska zakošena rebra koja služe uvlačenju bočnog difuznog svjetla u dvoranu crkve. Treći su prostorne niše u koje se uvlači direktno svjetlo u oltar, krstionicu i svetohranište. Umjetno svjetlo prati igru prirodnog po boji i vrsti osvjetljenja (toplo – liturgijske niše, hladno – difuzno bočno osvjetljenje).
Mediteranski ambjent crkve pričaju i sjene koje se izmjenjuju na trijemu prema parku i natkrivenom trgu pred ulazom u crkvu.
Dino Krizmanić, Leonid Zuban
Natječajni timDino Krizmanić, Leonid Zuban, Saša Putinja
SuradniciFranko Andrijančić, Silvana Pilar
KonstrukcijaTGI d.o.o. Pula, Franko Grubišić
Dizajn svjetlaSkira d.o.o. Pula, Dean Skira, Božidar Pustijanac
investitorRiječka nadbiskupija
lokacijaGornja Vežica, Rijeka
namjenaVjerski objekt
realizacija2016.
površina1.275 m2
glavni izvođačNovotehna d.d., Rijeka
fotografijeRobert Leš, Francesco Scarpa
Tomislav Nakić Alfirević, arhiva Molo Zero